Подходит под ИПОТЕКУ 3% Сельская и 6% Семейная!!!
Кадастровый номер участка на котором расположен дом 62:15:0060426:2198
Продам дом в новом коттеджном поселке с. Дубровичи «New Village» от строительной компании «GoodRich», которая известна своим качеством, современным и стильным подходом, а так же продуманными проектами до мелочей!
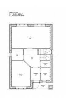
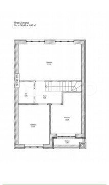
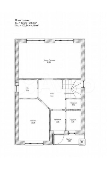
В доме 4 комнаты, просторные санузлы, два холла, подсобное помещение, гардеробная, балкон, большая гостиная 31 кв.м. !!!Панорамное остекление окон (двойной стеклопакет, профиль 70 мм) Кровля мягкая черепица Shinglas. Тип перекрытия- железобетонные плиты ПНО. Стены выполнены из газосиликатного блока с фактурной штукатуркой на фасаде. Фундамент- ленточный монолитный армированный.
Современный Коттеджный посёлок расположен в Рязанской области с. Дубровичи
- всего в 15 минутах езды на машине до центра г. Рязани !
НЕТ ЕЖЕМЕСЯЧНЫХ ВЗНОСОВ
Назначение земель ИЖС
Коммуникации
Комфортный подъезд к участкам
Показ в удобное время!
Тип предложения Продам
География село Дубровичи, Рязанская область, Рязанский район
Вид участка
Земли поселений (ИЖС, ЛПХ)
Площадь участка
9,30 соток
Коммуникации
отопление, водопровод, канализация, электроснабжение, газ
Дополнительно
возможность ПМЖ
7 820 000 ₽
Добавить в избранное
Удалить из избранного
Добавить к сравнению
Удалить из сравнения